Logo impression
Rue de Battice, 46
4800 PETIT-RECHAIN
Ipi : 513 309

Nos biens

À louer / Usage multiple / THEUX

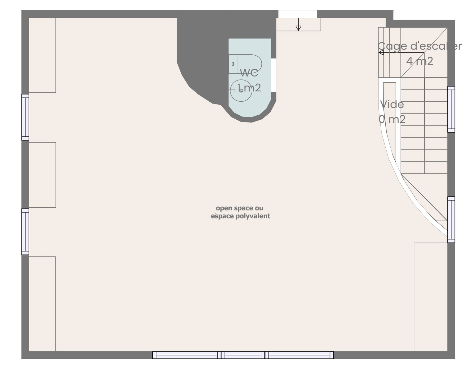
Entre les deux axes E25 & E40, espace multifonctionnel (commerce ou bureaux) de +/- 142 m² sur deux niveaux avec parking composé au rez-de-chaussée d'un open space ou commerce de 85 m² avec une réserve ou cuisine de 19 m² et à l' étage , un espace de +/- 57 m² avec sanitaire. Possibilité de scinder les niveaux (loyer à déterminer selon les besoins). Excellente visibilité et situation très pratique !

Intérieur

  • Toilettes 1

Bâtiment

  • Surface habitable 142,00 m²
  • Etat Bon état
  • Ascenseur Non
  • Double vitrage Oui
  • Chassis bois
  • Type de chauffage collectif
  • Type d'énergie du chauffage mazout (chauf. centr.)

Extérieur

  • Orientation du bâtiment nord
  • Nombre d'étages 1
  • Parking 1

Informations financières

  • Prix 1 400 €
  • Date de disponibilité 01/01/2026

A proximité de

  • Distance des transports en commun (mètres) 100 m
  • Distance des ecoles (mètres) 2000 m
  • Distance des magasins (mètres) 50 m
  • Distance de l'autoroute (mètres) 8000 m